Антарктика 114 м2 №935

Цена строительства от 5 200 000 ₽* * Стоимость не является окончательной
Заявка на консультацию
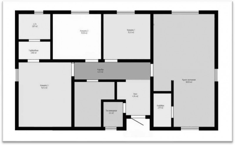
  • Общая площадь 101 м2
  • Материал стен Каркасно-панельные
  • Количество этажей 1
  • Подвал Нет
  • Мансарда без мансарды
  • Гараж Нет
  • Терраса Нет
  • Проживание Круглогодичное
  • Количество комнат 4
  • Количество спален 3
  • Количество санузлов 2
  • Вид проекта дом
  • Застройщик МоноЛит
  • Отделка фасада Комбинированная
  • Крыша Двускатная
  • Можно купить домокомплект Да
  • Модульный тип строения Нет
Планировки
Описание проекта

Антарктика 114 м - простор и комфорт для большой семьи Просторный одноэтажный дом «Антарктида» — это современное семейное жилище, где каждый член семьи найдет свое уютное место.

«Антарктида» — это больше чем просто дом. Это пространство, где созданы все условия для счастливой и комфортной жизни большой семьи, где каждый найдет свой уголок для отдыха и творчества.

Комплектации:

ДОМОКОМПЛЕКТ 1 699 000 р.

СТАНДАРТ 5 200 000 р.

КОМФОРТ 7 200 000 р.

КОМФОРТ+ 8 500 000 р.

Вас может заинтересовать
Вас может заинтересовать

Выбор местоположения

Задать вопрос / написать нам

E-mail: domgis@mail.ru

Мы свяжемся с Вами в течение дня.

Тех. поддержка
Предмет обращения:
Тукущая страница

Мы свяжемся с Вами в течение дня.

Уведомление
Предмет обращения:
Тукущая страница
Обратный звонок
Обратный звонок
Выберите ваш город
Пожаловаться

Объявление опубликовано.
Изменения сохранены

Период публикации - бессрочный, при условии подтверждения актуальности каждые 50 дней. Уведомления будут отправляться на Вашу электронную почту.

Выберите причину снятия с публикации

Снятые с публикации объявления не участвуют в поиске и недоступны для подробного просмотра.

Для повторной публикации нажмите «Вернуть в публикацию»